Description
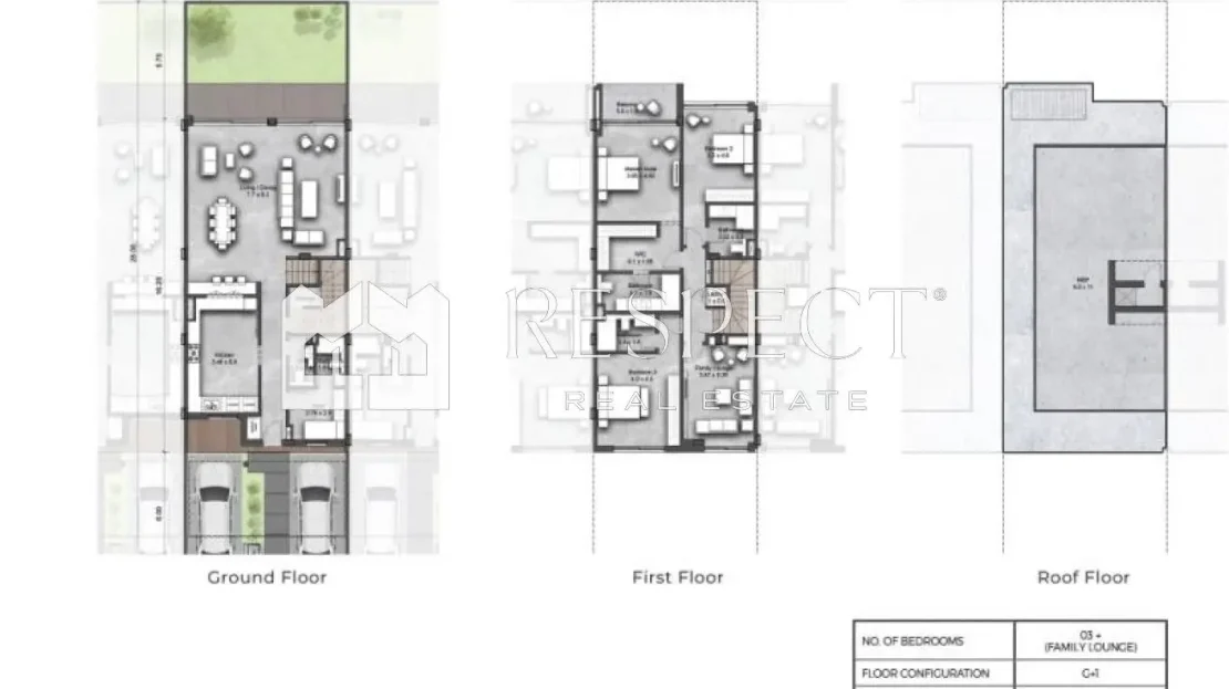
Open View | Single Row | Perfect Spot | 3 Bedroom + Maid Townhouse for sale in Reem Hills, Najmat Abu Dhabi
Experience elevated living at Reem Hills Apartments by Modon Properties, offering an exceptional selection of 1, 2, and 3-bedroom apartments, along with exclusive 3-bedroom duplex townhouses on Al Reem Island, Abu Dhabi. These premium residences reflect refined luxury, showcasing timeless architecture and expertly crafted designs. Lush terrace gardens, leisure areas, and dedicated seating spaces create the perfect setting for relaxation and everyday enjoyment. Stylish balconies offer breathtaking views of the skyline, surrounding infrastructure, and serene sea and water features, enhancing the living experience from every angle. The project’s prime location adds to its appeal, providing a harmonious environment with thoughtfully planned spaces that support productivity, wellness, and balance.
Al Reem Island presents a vibrant lifestyle filled with countless recreational, leisure, and social activities to enjoy with family and friends. Immerse yourself in a community designed for entertainment, relaxation, and joyful living. Secure your home in this dream destination, where natural beauty and modern comforts come together to create a peaceful and fulfilling lifestyle.
Nearby Locations:
- Galleria Mall
- Boutique Mall
- Cleveland Clinic
- Al Reem Mall
- Abu Dhabi Mall
- Abu Dhabi Downtown
- Al Maryah Island
Respect Real Estate is a professional company with over 10 years of experience in the UAE real estate market. Our goal is to meet all our clients’ needs quickly, exceed expectations, and provide the best home buying experience. We operate in both city and suburban areas, offering sales and rental services, with a strong focus on sales. We believe in integrity, commitment to excellence, professionalism, and Respect. Contact us for any real estate consultation.
| Regulatory Information | Details |
|---|---|
| Reference | 1812252 |
| Listed | 28 days ago |
| Broker License | 202301776088 |
| Permit (Madhmoun) | 202512000122508 |
| Agent License | 202301776088 |




























